Lot 3: Mandalay designs @ Taylors Rise Estate - Bellingen NSW 2454
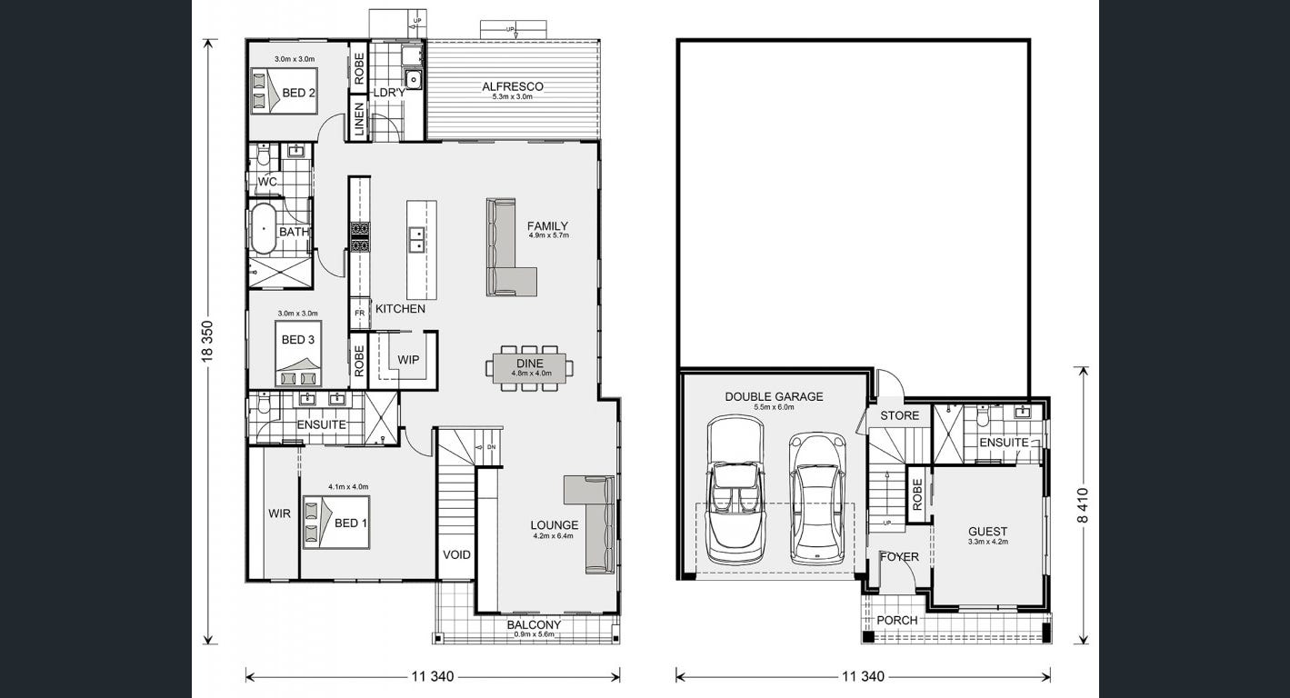
The Mandalay was designed around the concept of open space flowing out to an inner courtyard to create the ultimate in Resort style Living.
Three separate living zones wrap around a central courtyard allowing natural light and cooling cross breezes throughout the home. The gourmet kitchen including butler’s pantry, dining and family room flow out to a covered Alfresco area making entertaining a breeze.
A private & luxurious Master Suite with ensuite and Walk in Robe, 3 additional bedrooms with Activity, Study, family bathroom and a central open lounge room complete the picture.
Enjoy all the comforts this great design brings and experience the home you always wished to have.
Elegant form and perfect function, Mandalay Designs are a winning combination.
Allow yourself to imagine the lifestyle you’ve always wanted; in the home you deserve!
The Mandalay design offers individually crafted facades that will inspire you by providing a choice of homes that reflect your personal lifestyle and preferences.
For optimal site use, this design is best positioned on sites with the north aspect towards the side of the home, providing sustainable and comfortable living conditions throughout the year.

5
2
2Development Info of Taylors Rise Estate - Bellingen
This information is estimated by the OpenLot research team. Let us know here to provide up-to-date information about this development.
| Total new homes | 42 |
| Area size | N/A |
| City council | Bellingen Shire Council |
| Developer | Avenue Property |
| Project marketer | Warren Weick Real Estate |
| Creative agency | Delivery Creative Services |
Location & Map for Taylors Rise Estate - Bellingen
More House and Land Packages in Taylors Rise Estate - Bellingen
More House and Land Packages by G.J. Gardner Homes (Home Builder)
Vacancy Rate in Bellingen NSW 2454
View full vacancy rate history in Bellingen NSW 2454 via SQM Research.
Schools near Taylors Rise Estate - Bellingen
Here are 6 schools near Taylors Rise Estate - Bellingen:
7-12 Government Secondary School
K-6 Catholic Primary School
K-6 Government Primary School
K-6 Government Primary School
K-6 Government Primary School
K-6 Government Primary School
Popular Estates near Taylors Rise Estate - Bellingen
Latest New Home Articles for You
19/Aug/2025 | OpenLot.com.au
🏡 Suburb Profile: Beveridge
19/Aug/2025 | OpenLot.com.au
test
19/Aug/2025 | OpenLot.com.au
tests
13/Jun/2025 | OpenLot.com.au
Display Homes at Playford Alive Estate: A Thriving Community at the Heart of Munno Para
Welcome to Playford Alive, a vibrant and dynamic masterplanned community ...
11/Jun/2025 | OpenLot.com.au
Display Homes at Ocean Hill Estate: A Thriving Community by the Coast
A short stroll from the white sands of Madora Beach and fringed by the co...
10/Jun/2025 | OpenLot.com.au
Display Homes at Bluestone Estate: An Established Community in the Mount Barker
Whether you’re a first home buyer, a growing family, or looking to downsi...
09/Jun/2025 | OpenLot.com.au
Queensland Leads, But NSW and VIC Fall Behind, in New Housing Buyer Demand Index
New data reveals that Australia’s new housing market remains resilient de...
06/Jun/2025 | OpenLot.com.au
Display Homes at Minters Fields Estate: A Scenic Hillside Community in Mount Barker
Nestled in the heart of Mount Barker, Minters Fields offers a truly remar...
03/Jun/2025 | OpenLot.com.au
🏡 Step Inside a Frenken Home at Smiths Lane
During a recent visit to the Smiths Lane display village, OpenLot.com.au ...










