Woodbury Estate - Victoria Point
[NEW RELEASE] Woodbury - Live Wonderful
- Exclusive Fiteni estate
- Minutes to the water
- Leafy, green locale
- Master-planned community
This information is estimated by the OpenLot research team. Let us know here to provide up-to-date information about this development.
| Total new homes | 625 |
| Area size | N/A |
| Growth Region | Greater Brisbane Growth Areas |
| City council | Redland City Council |
| Developer | Fiteni Homes |
| Creative agency | Articulous |
| Distance to | Brisbane Airport - 27 km south-east Brisbane CBD - 28 km south-east Gold Coast CBD - 48 km north |
Land for Sale, House and Land Packages:
Popular Estates near Woodbury Estate - Victoria Point
Updates for Woodbury Estate - Victoria Point
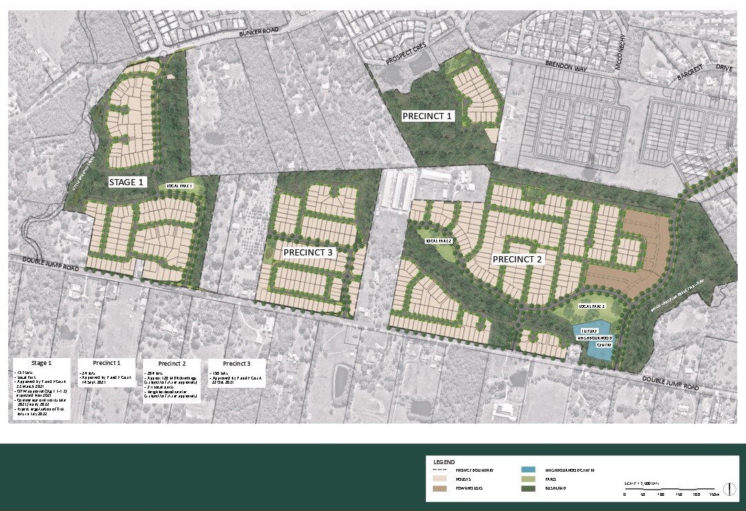
Location & Map for Woodbury Estate - Victoria Point
Visit Display Homes near Woodbury Estate - Victoria Point
Vacancy Rate in Victoria Point QLD 4165
View full vacancy rate history in Victoria Point QLD 4165 via SQM Research.
Schools near Woodbury Estate - Victoria Point
Here are 6 schools near Woodbury Estate - Victoria Point:
7-12 Government Secondary School
Prep-6 Catholic Primary School
10-12 Independent Special School
Prep-12 Independent Combined School - School Head Campus
Prep-6 Government Primary School
Prep-6 Government Primary School
Reviews & Comments on Woodbury Estate - Victoria Point
Estate Brochure, Masterplan, Engineering Plan, Plan of Subdivision (POS), Design Guidelines
FAQs about Woodbury Estate - Victoria Point
View all estates from Fiteni Homes
- Victoria Point State High School - 2.2km east
- St Rita's Primary School - 2.9km east
- YMCA Vocational School - Redlands - 3.1km north-east
- Faith Lutheran College - Redlands - 3.2km north-east
- Redland Bay State School - 3.3km south-east
- Victoria Point State School - 3.5km north-east
Popular Estates near Woodbury Estate - Victoria Point
Latest New Home Articles for You
19/Aug/2025 | OpenLot.com.au
🏡 Suburb Profile: Beveridge
19/Aug/2025 | OpenLot.com.au
test
19/Aug/2025 | OpenLot.com.au
tests
13/Jun/2025 | OpenLot.com.au
Display Homes at Playford Alive Estate: A Thriving Community at the Heart of Munno Para
Welcome to Playford Alive, a vibrant and dynamic masterplanned community ...
11/Jun/2025 | OpenLot.com.au
Display Homes at Ocean Hill Estate: A Thriving Community by the Coast
A short stroll from the white sands of Madora Beach and fringed by the co...
10/Jun/2025 | OpenLot.com.au
Display Homes at Bluestone Estate: An Established Community in the Mount Barker
Whether you’re a first home buyer, a growing family, or looking to downsi...
09/Jun/2025 | OpenLot.com.au
Queensland Leads, But NSW and VIC Fall Behind, in New Housing Buyer Demand Index
New data reveals that Australia’s new housing market remains resilient de...
06/Jun/2025 | OpenLot.com.au
Display Homes at Minters Fields Estate: A Scenic Hillside Community in Mount Barker
Nestled in the heart of Mount Barker, Minters Fields offers a truly remar...
03/Jun/2025 | OpenLot.com.au
🏡 Step Inside a Frenken Home at Smiths Lane
During a recent visit to the Smiths Lane display village, OpenLot.com.au ...











