Woodlands Estate - Andergrove
This information is estimated by the OpenLot research team. Let us know here to provide up-to-date information about this development.
| Total new homes | N/A |
| Area size | N/A |
| City council | Mackay Regional Council |
| Developer | Economic Development Queensland |
Land for Sale, House and Land Packages, Townhomes:
Popular Estates near Woodlands Estate - Andergrove
Updates for Woodlands Estate - Andergrove
Location & Map for Woodlands Estate - Andergrove
Vacancy Rate in Andergrove QLD 4740
View full vacancy rate history in Andergrove QLD 4740 via SQM Research.
Schools near Woodlands Estate - Andergrove
Here are 6 schools near Woodlands Estate - Andergrove:
7-12 Government Secondary School
Prep-6 Catholic Primary School
Prep-6 Government Primary School
Prep-6 Government Primary School
Prep-12 Government Special School
Prep-12 Independent Combined School
Reviews & Comments on Woodlands Estate - Andergrove
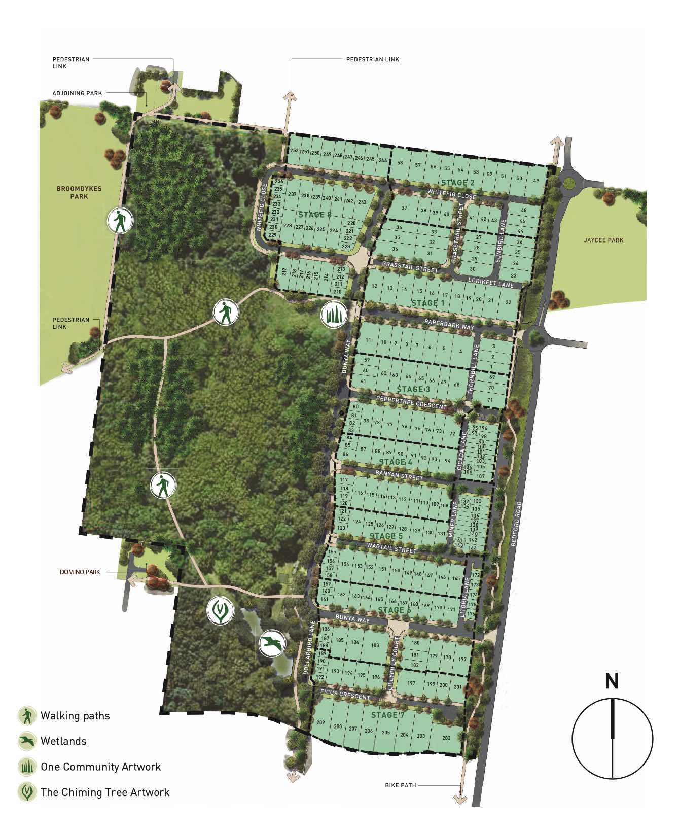
Estate Brochure, Masterplan, Engineering Plan, Plan of Subdivision (POS), Design Guidelines
FAQs about Woodlands Estate - Andergrove
View all estates from Economic Development Queensland
- Pioneer State High School - 866m south
- MacKillop Catholic Primary School - 895m north-east
- Andergrove State School - 903m east
- Beaconsfield State School - 1.0km south-west
- Mackay District Special School - 1.2km south-west
- Whitsunday Anglican School - 1.5km south-west
Popular Estates near Woodlands Estate - Andergrove
Latest New Home Articles for You
19/Aug/2025 | OpenLot.com.au
🏡 Suburb Profile: Beveridge
19/Aug/2025 | OpenLot.com.au
test
19/Aug/2025 | OpenLot.com.au
tests
13/Jun/2025 | OpenLot.com.au
Display Homes at Playford Alive Estate: A Thriving Community at the Heart of Munno Para
Welcome to Playford Alive, a vibrant and dynamic masterplanned community ...
11/Jun/2025 | OpenLot.com.au
Display Homes at Ocean Hill Estate: A Thriving Community by the Coast
A short stroll from the white sands of Madora Beach and fringed by the co...
10/Jun/2025 | OpenLot.com.au
Display Homes at Bluestone Estate: An Established Community in the Mount Barker
Whether you’re a first home buyer, a growing family, or looking to downsi...
09/Jun/2025 | OpenLot.com.au
Queensland Leads, But NSW and VIC Fall Behind, in New Housing Buyer Demand Index
New data reveals that Australia’s new housing market remains resilient de...
06/Jun/2025 | OpenLot.com.au
Display Homes at Minters Fields Estate: A Scenic Hillside Community in Mount Barker
Nestled in the heart of Mount Barker, Minters Fields offers a truly remar...
03/Jun/2025 | OpenLot.com.au
🏡 Step Inside a Frenken Home at Smiths Lane
During a recent visit to the Smiths Lane display village, OpenLot.com.au ...








