109-111 Church Road, Bethania QLD 4205 IN PLANNING
This information is estimated by the OpenLot research team. Let us know here to provide up-to-date information about this development.
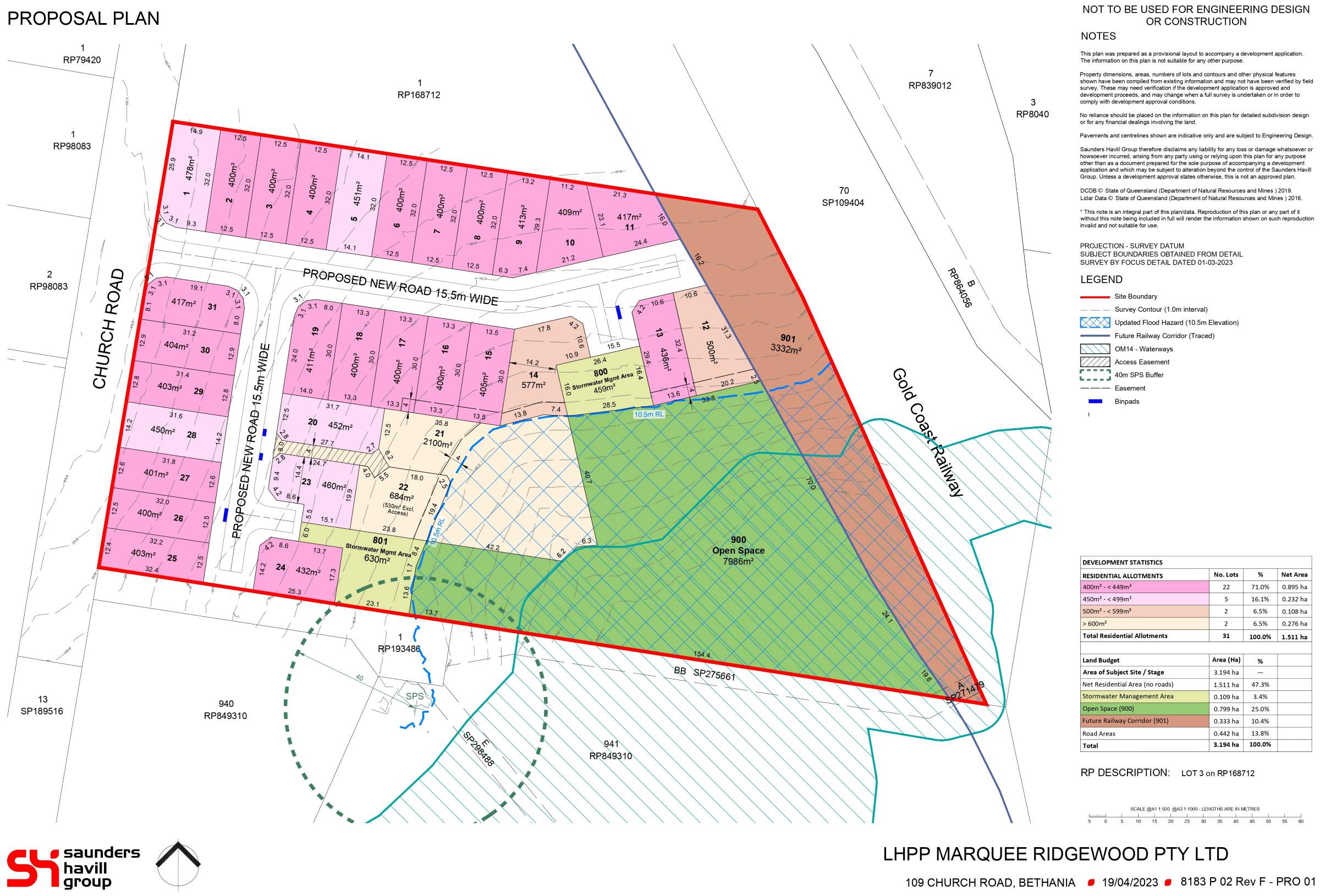
| Total new homes | 35 |
| Area size | 3.19 hectares |
| Growth Region | Greater Brisbane Growth Areas |
| City council | Logan City Council |
| Developer | LHPP |
| Distance to | Brisbane CBD - 29 km south-east Brisbane Airport - 34 km south Gold Coast CBD - 42 km north-west |
Land for Sale, House and Land Packages:
Popular Estates near 109-111 Church Road, Bethania
Updates for 109-111 Church Road, Bethania
Location & Map for 109-111 Church Road, Bethania
Visit Display Homes near 109-111 Church Road, Bethania
Vacancy Rate in Bethania QLD 4205
View full vacancy rate history in Bethania QLD 4205 via SQM Research.
Schools near 109-111 Church Road, Bethania
Here are 6 schools near 109-111 Church Road, Bethania:
Prep-6 Independent Primary School
Prep-6 Government Primary School
Prep-6 Government Primary School
Prep-6 Government Primary School
Prep-12 Independent Combined School
7-12 Government Secondary School
Reviews & Comments on 109-111 Church Road, Bethania
Estate Brochure, Masterplan, Engineering Plan, Plan of Subdivision (POS), Design Guidelines
FAQs about 109-111 Church Road, Bethania
View all estates from LHPP
- Bethania Lutheran Primary School - 542m west
- Edens Landing State School - 1.4km south-east
- Waterford State School - 1.8km west
- Loganholme State School - 2.0km north-east
- Canterbury College - 2.1km south-west
- Loganlea State High School - 3.1km north-west
Popular Estates near 109-111 Church Road, Bethania
Latest New Home Articles for You
19/Aug/2025 | OpenLot.com.au
🏡 Suburb Profile: Beveridge
19/Aug/2025 | OpenLot.com.au
test
19/Aug/2025 | OpenLot.com.au
tests
13/Jun/2025 | OpenLot.com.au
Display Homes at Playford Alive Estate: A Thriving Community at the Heart of Munno Para
Welcome to Playford Alive, a vibrant and dynamic masterplanned community ...
11/Jun/2025 | OpenLot.com.au
Display Homes at Ocean Hill Estate: A Thriving Community by the Coast
A short stroll from the white sands of Madora Beach and fringed by the co...
10/Jun/2025 | OpenLot.com.au
Display Homes at Bluestone Estate: An Established Community in the Mount Barker
Whether you’re a first home buyer, a growing family, or looking to downsi...
09/Jun/2025 | OpenLot.com.au
Queensland Leads, But NSW and VIC Fall Behind, in New Housing Buyer Demand Index
New data reveals that Australia’s new housing market remains resilient de...
06/Jun/2025 | OpenLot.com.au
Display Homes at Minters Fields Estate: A Scenic Hillside Community in Mount Barker
Nestled in the heart of Mount Barker, Minters Fields offers a truly remar...
03/Jun/2025 | OpenLot.com.au
🏡 Step Inside a Frenken Home at Smiths Lane
During a recent visit to the Smiths Lane display village, OpenLot.com.au ...











