147 Dollarburn Road, Warragul VIC 3820 IN PLANNING
This information is estimated by the OpenLot research team. Let us know here to provide up-to-date information about this development.
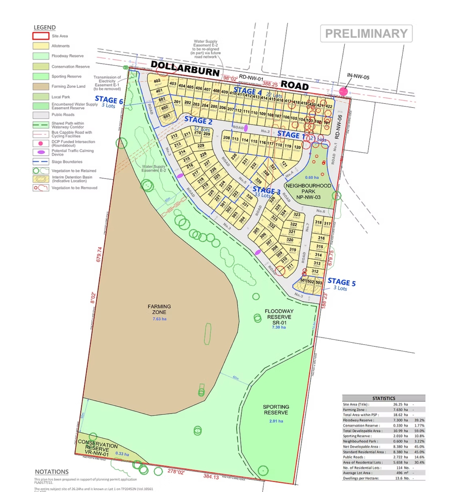
| Total new homes | 111 |
| Area size | 26.59 hectares |
| Growth Region | Gippsland Regional Growth Areas |
| City council | Baw Baw Shire Council |
| Developer | Titan Development Australia |
| Distance to | Melbourne CBD - 90 km south-east |
Land for Sale, House and Land Packages:
Popular Estates near 147 Dollarburn Road, Warragul
Updates for 147 Dollarburn Road, Warragul
Location & Map for 147 Dollarburn Road, Warragul
Visit Display Homes near 147 Dollarburn Road, Warragul
Land Price Trend in Warragul VIC 3820
- In Oct - Dec 24, the median price for vacant land in Warragul VIC 3820 was $316,700. *
- From Oct - Dec 17 to Oct - Dec 24, the median price for vacant land in Warragul VIC 3820 has increased 85.2%. *
- From 2008 to 2024, the median price for vacant land in Warragul VIC 3820 has increased 240.54%. *
Vacancy Rate in Warragul VIC 3820
View full vacancy rate history in Warragul VIC 3820 via SQM Research.
Schools near 147 Dollarburn Road, Warragul
Here are 6 schools near 147 Dollarburn Road, Warragul:
Prep-12 Independent Combined School - School Head Campus
Prep-6 Catholic Primary School
7-12 Catholic Secondary School
Prep-6 Government Primary School
Prep-6 Government Primary School
Prep-12 Independent Combined School - School Head Campus
Reviews & Comments on 147 Dollarburn Road, Warragul
Estate Brochure, Masterplan, Engineering Plan, Plan of Subdivision (POS), Design Guidelines
FAQs about 147 Dollarburn Road, Warragul
View all estates from Titan Development Australia
- St Paul's Anglican Grammar School - 2.3km south-east
- St Joseph's School - 2.8km south
- Marist-Sion College - 2.9km south
- Warragul North Primary School - 2.9km south-east
- Warragul Primary School - 2.9km south-east
- Chairo Christian School - 3.3km west
Popular Estates near 147 Dollarburn Road, Warragul
Latest New Home Articles for You
19/Aug/2025 | OpenLot.com.au
🏡 Suburb Profile: Beveridge
19/Aug/2025 | OpenLot.com.au
test
19/Aug/2025 | OpenLot.com.au
tests
13/Jun/2025 | OpenLot.com.au
Display Homes at Playford Alive Estate: A Thriving Community at the Heart of Munno Para
Welcome to Playford Alive, a vibrant and dynamic masterplanned community ...
11/Jun/2025 | OpenLot.com.au
Display Homes at Ocean Hill Estate: A Thriving Community by the Coast
A short stroll from the white sands of Madora Beach and fringed by the co...
10/Jun/2025 | OpenLot.com.au
Display Homes at Bluestone Estate: An Established Community in the Mount Barker
Whether you’re a first home buyer, a growing family, or looking to downsi...
09/Jun/2025 | OpenLot.com.au
Queensland Leads, But NSW and VIC Fall Behind, in New Housing Buyer Demand Index
New data reveals that Australia’s new housing market remains resilient de...
06/Jun/2025 | OpenLot.com.au
Display Homes at Minters Fields Estate: A Scenic Hillside Community in Mount Barker
Nestled in the heart of Mount Barker, Minters Fields offers a truly remar...
03/Jun/2025 | OpenLot.com.au
🏡 Step Inside a Frenken Home at Smiths Lane
During a recent visit to the Smiths Lane display village, OpenLot.com.au ...















