
Homebuyers Centre
At Homebuyers Centre, we make building your new home simple. From securing great-value finance to finding the perfect block of land, we guide you every step of the way.
Our strong partnerships with developers and industry experts mean you get access to the best house and land packages across Victoria - plus a wide range of stylish, functional home designs to suit your lifestyle.
Every home is built with care, using top-quality materials and trusted trade partners. From smart layouts to premium standard inclusions, we focus on delivering a home that’s built to last - and built for you.
Homebuyers Centre is a home builder & developer with 21 housing estates, 154 house & land packages, 68 townhouses and 24 display homes listed across Aintree, Armstrong Creek, Berwick, Beveridge, Charlemont, Clyde North, Clyde, Colac, Craigieburn, Cranbourne East, Donnybrook, Drouin, Eglinton, Elliminyt, Fraser Rise, Gisborne, Huntly, Jackass Flat, Kalkallo, Kennington, Lara, Lucas, Mambourin, Manor Lakes, Marong, Mickleham, Moe, Morwell, Mount Duneed, Newborough, Officer South, Officer, Pakenham East, Rockbank, San Remo, Skye, Strathtulloh, Sunbury, Tarneit, Truganina, Warragul, Weir Views, Werribee, Winter Valley and Wollert.
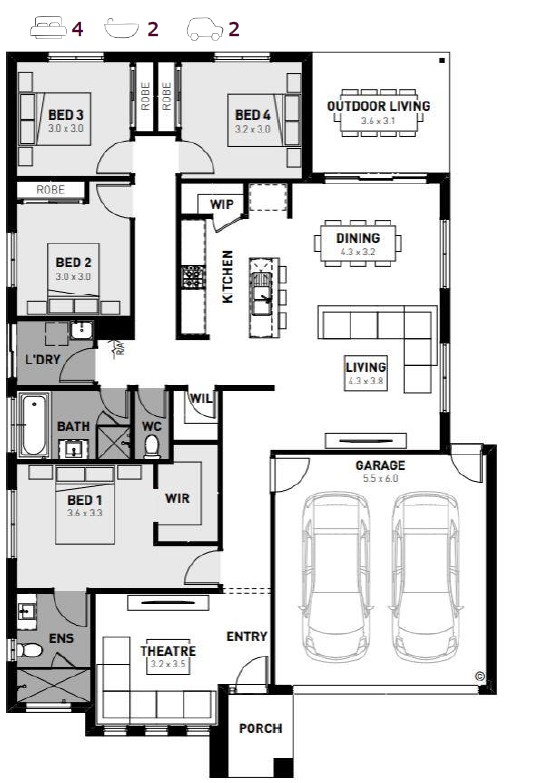
11 Home Designs & 15 Floor-plan Options from Homebuyers Centre
24 Display Homes from Homebuyers Centre


4
2
2
2

4
2.5
2
2

4
2
2
2

4
2.5
2
2
4
2
1
2
4
2
2
2

4
2
2
2
4
2
1
2
4
2
1
2

4
2.5
2
2

4
2
2
2
4
2
2
2
4
2
2
2

4
2
2
2

4
2.5
2
2
4
2.5
2
2

4
2
2
2

4
2
2
2

4
2.5
2
2

4
2
2
2

4
2
2
2

4
2
2
2
4
2
2
2

4
2
2
2154 House & Land Packages from Homebuyers Centre
68 Townhouses from Homebuyers Centre
21 Housing Estates from Homebuyers Centre
🔥 enquired in last 24 hours.































