
Empire by Homebuyers Centre
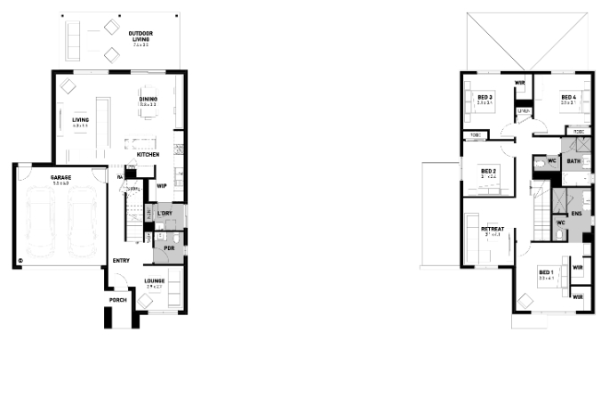
Expansive family living and designer style are compelling reasons to explore the Empire. This spacious double storey home offers four bedrooms, two bathrooms and a powder room. The entry boasts a dedicated home theatre room, while in the hub of the home is the central kitchen, featuring a walk-in pantry and plenty of bench space for easy entertaining.
Adjacent dining and living areas welcome natural light through sliding doors, while upstairs provides a tranquil retreat with the master bedroom, complete with built-in robe and ensuite with an oversized shower. The main bathroom sits nestled amongst the remaining three bedrooms. The Empire stands tall as a home that transports families to a better and more enjoyable lifestyle.
Display Homes & 3D Tours for Empire by Homebuyers Centre
More House and Land Packages by Homebuyers Centre (Home Builder)
More Townhouses by Homebuyers Centre (Home Builder)

3
2
2The Etto is an affordable solution to home ownership without compromise. Designed to maximise light and space, it provides comfortable living with urban styling, ensuring you enjoy both elegance and practicality in your home.
*Lower end of price range displayed is subject to your eligibility for the Victorian First Home Owner Grant (FHOG). Upper end of price range displayed does not take into account any government grants.
The First Home Owner Grant and Home Buyer Schemes Act generally requires applicants for the Grant to be an Australian citizen or permanent resident of at least 18 years of age. Applicants and their partner or spouse must not have previously owned a residential property, or received a first home owner's grant, in any state or territory in Australia. Applicants must occupy the home for a continuous period of at least 12 months, commencing within 12 months of settlement or completion of construction. Contract price for the home must be $750,000 or less. For further information on Grant eligibility, please click here. Information on this page is accurate as at January 2025.

