
Lot 213: Enfield 201 @ Northside Estate - Clyde North VIC 3978
Discover house and land at Northside
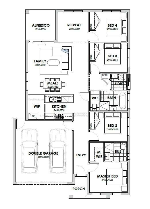
We've partnered with Mimosa Homes to package up the Enfield 201, from just $683,000.
Register your interest and visit the Northside sales office today to uncover a vibrant new community and experience life on the Northside!

4
2
2Development Info of Northside Estate - Clyde North
This information is estimated by the OpenLot research team. Let us know here to provide up-to-date information about this development.
| Total new homes | 523 |
| Area size | N/A |
| Growth Region | Melbourne South East Growth Corridor |
| City council | Casey City Council |
| Developer | Mach Green Developments, AquaStone |
| Distance to | Melbourne CBD - 48 km south-east |
Location & Map for Northside Estate - Clyde North
Visit Display Homes near Northside Estate - Clyde North
More House and Land Packages in Northside Estate - Clyde North
More House and Land Packages by Mimosa Homes (Home Builder)


4
2
2* NCC Compliant Floorplan
* Mimosa Homes Added Value Inclusions:
- Inclusive of site costs & connections with H1 class slab as per standard inclusions!
- Quality floor coverings throughout entire home!
- Higher ceilings 2550mm to ground floor!
- Double Glazed Awning windows
- Downlights to living areas!
- Vitrified Compact Surface benchtop to kitchen!
- 900mm S/S upright oven and cook top with S/S canopy rangehood!
- Stainless steel Dishwasher and Microwave with trim kit!
Land Price Trend in Clyde North VIC 3978
- In Oct - Dec 24, the median price for vacant land in Clyde North VIC 3978 was $433,000. *
- From Oct - Dec 17 to Oct - Dec 24, the median price for vacant land in Clyde North VIC 3978 has increased 27.73%. *
- From 2008 to 2024, the median price for vacant land in Clyde North VIC 3978 has increased 226.92%. *
Vacancy Rate in Clyde North VIC 3978
View full vacancy rate history in Clyde North VIC 3978 via SQM Research.
Schools near Northside Estate - Clyde North
Here are 6 schools near Northside Estate - Clyde North:
Prep-4 Independent Primary School
Prep-6 Government Primary School
Prep-12 Independent Combined School - School Head Campus
Prep-6 Government Primary School
U Government Special School
7-12 Government Secondary School
Popular Estates near Northside Estate - Clyde North
Latest New Home Articles for You
19/Aug/2025 | OpenLot.com.au
🏡 Suburb Profile: Beveridge
19/Aug/2025 | OpenLot.com.au
test
19/Aug/2025 | OpenLot.com.au
tests
13/Jun/2025 | OpenLot.com.au
Display Homes at Playford Alive Estate: A Thriving Community at the Heart of Munno Para
Welcome to Playford Alive, a vibrant and dynamic masterplanned community ...
11/Jun/2025 | OpenLot.com.au
Display Homes at Ocean Hill Estate: A Thriving Community by the Coast
A short stroll from the white sands of Madora Beach and fringed by the co...
10/Jun/2025 | OpenLot.com.au
Display Homes at Bluestone Estate: An Established Community in the Mount Barker
Whether you’re a first home buyer, a growing family, or looking to downsi...
09/Jun/2025 | OpenLot.com.au
Queensland Leads, But NSW and VIC Fall Behind, in New Housing Buyer Demand Index
New data reveals that Australia’s new housing market remains resilient de...
06/Jun/2025 | OpenLot.com.au
Display Homes at Minters Fields Estate: A Scenic Hillside Community in Mount Barker
Nestled in the heart of Mount Barker, Minters Fields offers a truly remar...
03/Jun/2025 | OpenLot.com.au
🏡 Step Inside a Frenken Home at Smiths Lane
During a recent visit to the Smiths Lane display village, OpenLot.com.au ...

















