Wattlebird Estate - Newee Creek SOLD OUT
This information is estimated by the OpenLot research team. Let us know here to provide up-to-date information about this development.
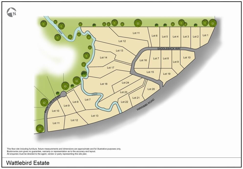
| Total new homes | 24 |
| Area size | N/A |
| City council | Nambucca Valley Council |
| Developer | N/A |
| Project marketer | Nationwide Property Brokers |
Land for Sale, House and Land Packages:
Popular Estates near Wattlebird Estate - Newee Creek
Updates for Wattlebird Estate - Newee Creek
Location & Map for Wattlebird Estate - Newee Creek
Vacancy Rate in Newee Creek NSW 2447
View full vacancy rate history in Newee Creek NSW 2447 via SQM Research.
Schools near Wattlebird Estate - Newee Creek
Here are 6 schools near Wattlebird Estate - Newee Creek:
K-12 Independent Combined School
7-12 Government Secondary School
K-6 Government Primary School
K-6 Government Primary School
K-6 Government Primary School
Reviews & Comments on Wattlebird Estate - Newee Creek
Estate Brochure, Masterplan, Engineering Plan, Plan of Subdivision (POS), Design Guidelines
FAQs about Wattlebird Estate - Newee Creek
View all estates marketed by Nationwide Property Brokers
- Nambucca Valley Christian Community School - 4.1km north-east
- Nambucca Heads High School - 4.1km east
- Frank Partridge VC Public School - 4.2km east
- Nambucca Heads Public School - 6.1km east
- Macksville Public School - 6.5km south-west
Popular Estates near Wattlebird Estate - Newee Creek
Latest New Home Articles for You
19/Aug/2025 | OpenLot.com.au
🏡 Suburb Profile: Beveridge
19/Aug/2025 | OpenLot.com.au
test
19/Aug/2025 | OpenLot.com.au
tests
13/Jun/2025 | OpenLot.com.au
Display Homes at Playford Alive Estate: A Thriving Community at the Heart of Munno Para
Welcome to Playford Alive, a vibrant and dynamic masterplanned community ...
11/Jun/2025 | OpenLot.com.au
Display Homes at Ocean Hill Estate: A Thriving Community by the Coast
A short stroll from the white sands of Madora Beach and fringed by the co...
10/Jun/2025 | OpenLot.com.au
Display Homes at Bluestone Estate: An Established Community in the Mount Barker
Whether you’re a first home buyer, a growing family, or looking to downsi...
09/Jun/2025 | OpenLot.com.au
Queensland Leads, But NSW and VIC Fall Behind, in New Housing Buyer Demand Index
New data reveals that Australia’s new housing market remains resilient de...
06/Jun/2025 | OpenLot.com.au
Display Homes at Minters Fields Estate: A Scenic Hillside Community in Mount Barker
Nestled in the heart of Mount Barker, Minters Fields offers a truly remar...
03/Jun/2025 | OpenLot.com.au
🏡 Step Inside a Frenken Home at Smiths Lane
During a recent visit to the Smiths Lane display village, OpenLot.com.au ...








