Ferntree Ridge Estate - Drouin 31 AVAILABLE
[LIMITED OFFER] New Ferntree Ridge Display Village Open Now
- Build your dream in Drouin and experience living at its best. At Ferntree Ridge there is room to grow, schools to learn, countryside to explore, friends to be gained, shops to peruse, fun to be had, memories to be made, your dream home built and your best life lived.
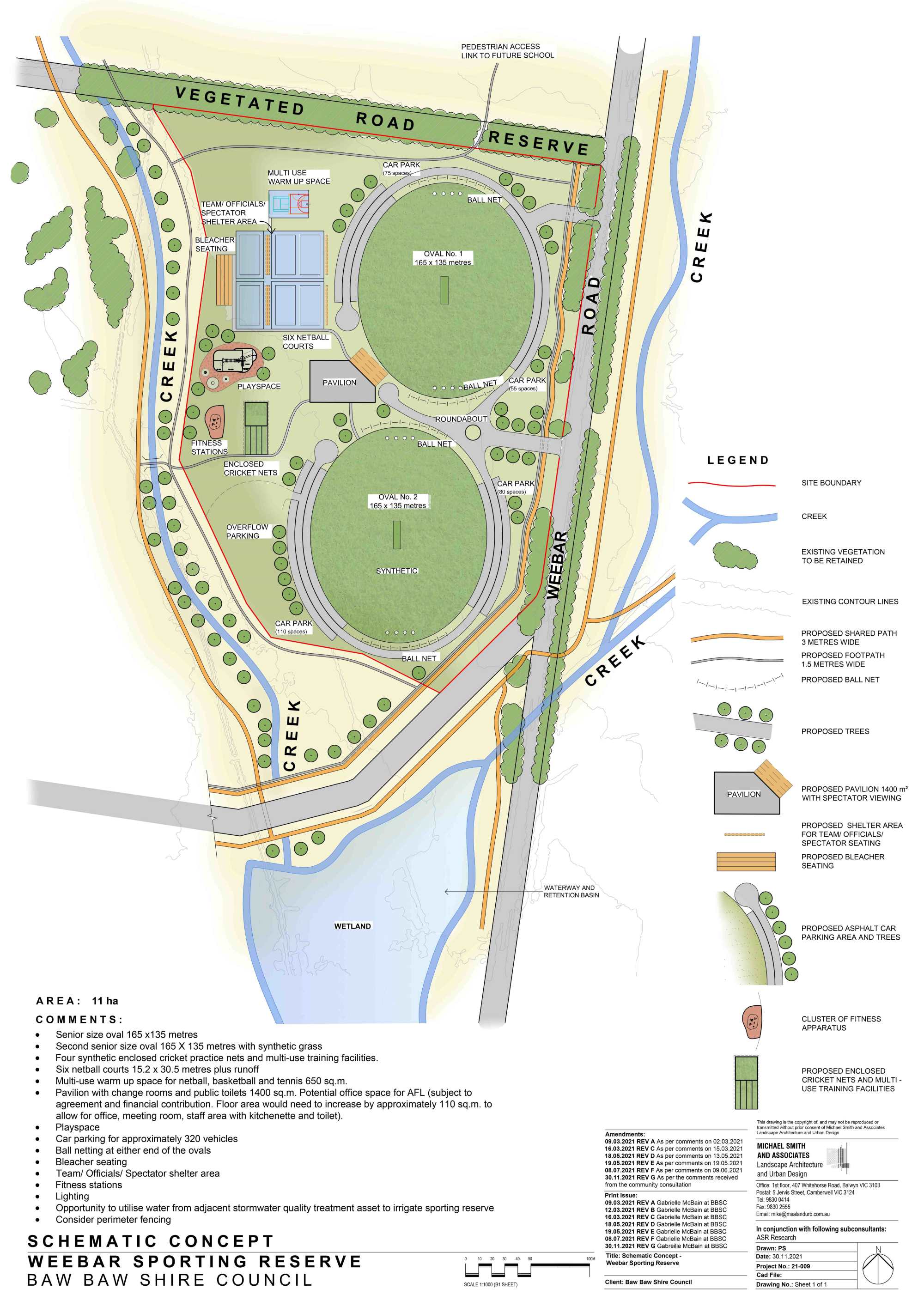
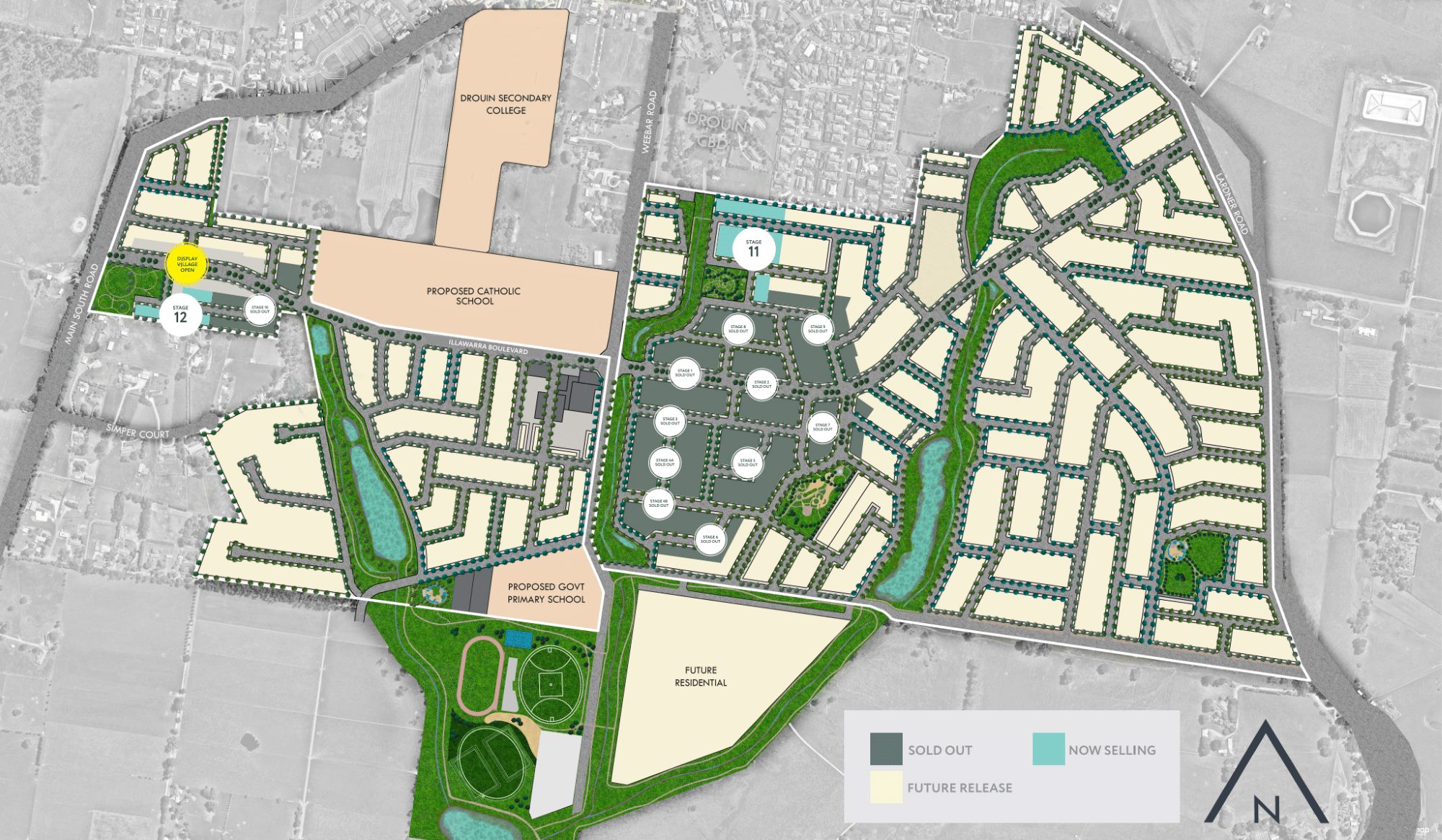
- Ferntree Ridge has been designed with the health and wellbeing of its residents and their community in mind. With over 1600 lots to build your dream home on Ferntree Ridge offers much more than just land for your home. As part of the development a new Shopping Precinct, Community Centre and Display Village will be created, Government Primary School, Catholic School and Retirement Living built, all connected with over 15km of connected walking trails, parklands and sporting fields.
- Ferntree Ridge is located in Drouin, a country town 97km east of Melbourne that showcases the very best of country living with the added bonus of being a short 70-minute commute to Melbourne CBD. Enjoy the rolling hills all around to explore, your local football team to cheer on, a smiling butcher and baker that know you by name, schools with room for children to run and play and a community that cares and supports you and your family.
This information is estimated by the OpenLot research team. Let us know here to provide up-to-date information about this development.
| Total new homes | 1,600 |
| Area size | N/A |
| Growth Region | Gippsland Regional Growth Areas |
| City council | Baw Baw Shire Council |
| Developer | LandGipps |
| Distance to | Melbourne CBD - 87 km south-east |
Land for Sale, House and Land Packages:
49 Land Lots in Ferntree Ridge Estate - Drouin
This latest stage in the development can accommodate various styles of builds and with the lots being benched, retained and levelled for your future home to be built on.
With 16 lots titled now and waiting for you to come home
This latest stage in the development can accommodate various styles of builds and with the lots being benched, retained and levelled for your future home to be built on.
With 16 lots titled now and waiting for you to come home
This latest stage in the development can accommodate various styles of builds and with the lots being benched, retained and levelled for your future home to be built on.
With 16 lots titled now and waiting for you to come home
This latest stage in the development can accommodate various styles of builds and with the lots being benched, retained and levelled for your future home to be built on.
With 16 lots titled now and waiting for you to come home
This latest stage in the development can accommodate various styles of builds and with the lots being benched, retained and levelled for your future home to be built on.
With 16 lots titled now and waiting for you to come home
This latest stage in the development can accommodate various styles of builds and with the lots being benched, retained and levelled for your future home to be built on.
With 16 lots titled now and waiting for you to come home
20 Display Homes in Ferntree Ridge Estate Display Village - Drouin
4
2
2
2
4
2
2
2
4
2
2
2
4
2
2
2
4
2
2
2
4
2
2
2
4
2
2
2
4
2
3
2
4
2
2
2
4
2
2
2
4
2
1
2

Popular Estates near Ferntree Ridge Estate - Drouin
Updates for Ferntree Ridge Estate - Drouin
Location & Map for Ferntree Ridge Estate - Drouin
Land Price Trend in Drouin VIC 3818
- In Oct - Dec 24, the median price for vacant land in Drouin VIC 3818 was $355,000. *
- From Oct - Dec 17 to Oct - Dec 24, the median price for vacant land in Drouin VIC 3818 has increased 75.31%. *
- From 2008 to 2024, the median price for vacant land in Drouin VIC 3818 has increased 317.65%. *
Schools near Ferntree Ridge Estate - Drouin
Here are 6 schools near Ferntree Ridge Estate - Drouin:
7-12 Government Secondary School - School Head Campus
Prep-6 Government Primary School
Prep-12 Independent Combined School - School Head Campus
Prep-6 Catholic Primary School
Prep-6 Government Primary School
Prep-6 Catholic Primary School
Reviews & Comments on Ferntree Ridge Estate - Drouin
Estate Brochure, Masterplan, Engineering Plan, Plan of Subdivision (POS), Design Guidelines
FAQs about Ferntree Ridge Estate - Drouin
View all estates from LandGipps
- Drouin Secondary College - 881m north
- Drouin Primary School - 2.1km north
- Chairo Christian School - 2.3km north-east
- St Ita's School - 2.3km north
- Drouin South Primary School - 3.1km south-west
- St Joseph's School - 5.1km east
Popular Estates near Ferntree Ridge Estate - Drouin
Latest New Home Articles for You
19/Aug/2025 | OpenLot.com.au
🏡 Suburb Profile: Beveridge
19/Aug/2025 | OpenLot.com.au
test
19/Aug/2025 | OpenLot.com.au
tests
13/Jun/2025 | OpenLot.com.au
Display Homes at Playford Alive Estate: A Thriving Community at the Heart of Munno Para
Welcome to Playford Alive, a vibrant and dynamic masterplanned community ...
11/Jun/2025 | OpenLot.com.au
Display Homes at Ocean Hill Estate: A Thriving Community by the Coast
A short stroll from the white sands of Madora Beach and fringed by the co...
10/Jun/2025 | OpenLot.com.au
Display Homes at Bluestone Estate: An Established Community in the Mount Barker
Whether you’re a first home buyer, a growing family, or looking to downsi...
09/Jun/2025 | OpenLot.com.au
Queensland Leads, But NSW and VIC Fall Behind, in New Housing Buyer Demand Index
New data reveals that Australia’s new housing market remains resilient de...
06/Jun/2025 | OpenLot.com.au
Display Homes at Minters Fields Estate: A Scenic Hillside Community in Mount Barker
Nestled in the heart of Mount Barker, Minters Fields offers a truly remar...
03/Jun/2025 | OpenLot.com.au
🏡 Step Inside a Frenken Home at Smiths Lane
During a recent visit to the Smiths Lane display village, OpenLot.com.au ...


















